藍膜浸沒式平板MBR膜性能參數一覽表 | |||
平板膜元件型號 | MF-YBP-0.8 | MF-YBP-1.0 | MF-YBP-1.5 |
單片有效膜面積(㎡) | 0.8 | 1.0 | 1.5 |
尺寸(長x寬x高)±2mm | 1000*190*7 | 1000*518*7.5 | 1750*490*7 |
產水量(升/片.天) | 320-480 | 400-600 | 600-900 |
平均膜孔徑(μm) | 0.1≥ | ||
材料 | PVDF+PET或CPVC+PET | ||
曝氣量(L/min.片) | 7-8L | 10-12L | 12-15L |
重量(KG) | 2.9 | 3.4 | 5.7 |
出水濁度(NTU) | ≤1 | ||
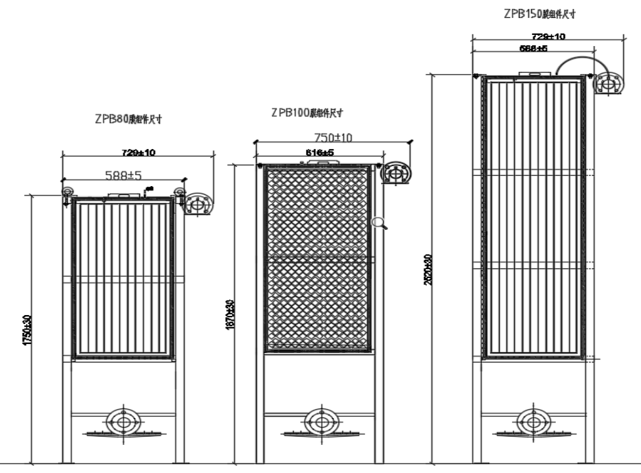
平板膜組件型號 | ZPB80系列 | ZPB100系列 | ZPB150系列 | 備注 |
尺寸:高*寬(mm) | 1750*720 | 1850*750 | 2500*720 | 相關產品尺寸以實際出廠產品為準 |
水深要求mm | 1750+500 | 1850+500 | 2500+500 | |
產水管法蘭接口 | DN40 PN1.0 | DN40或DN50 PN1.0 | ||
曝氣管法蘭接口 | DN65 PN1.0 | DN65 PN1.0 | ||
規格圖 |
| |||



